פסיעה מהבימה! משופצת ומוארת!
נמכר
פרטי הנכס
נכס מס' 2256
| כתובת: | מרמורק 26, תל אביב יפו |
|---|---|
| איזור: | לב העיר, |
| סוג רחוב: | רחוב ראשי |
| סוג בניין: | משופץ |
| סוג הנכס: | דירה |
| מחיר: | 3,400,000 ש"ח |
קומה :
1
סה"כ קומות :
3
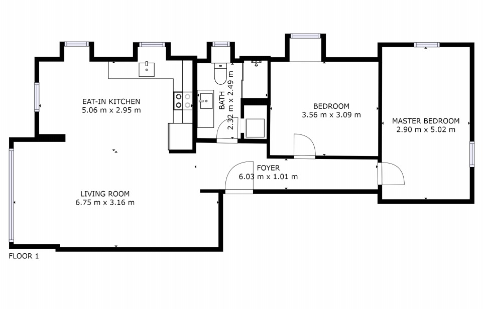
מטר מרובע :
79
מס' חדרים :
3
מס' חדרי שינה :
2
מס' מקלחות :
1
מרפסת סגורה :
יש
מצב הנכס :
לאחר שיפוץ
מרפסת שמש :
אין
סוג חניה :
פתרון חניה
מעלית :
אין
כיווני אויר :
צפון , דרום , מזרח
פסיעות בודדות מהבימה!
בבניין משופצץ,
דירת 3 חדרים מרווחת ומשופצת מקסים!
חדרים מרווחים,
מוארת,
שלושה כיווני אוויר מלאים,
אפשר להפוך ל 4 חדרים!
ואפשר לפתוח מרפסת שמש!
בבניין משופצץ,
דירת 3 חדרים מרווחת ומשופצת מקסים!
חדרים מרווחים,
מוארת,
שלושה כיווני אוויר מלאים,
אפשר להפוך ל 4 חדרים!
ואפשר לפתוח מרפסת שמש!
מפה
צור קשר
| כתובת: | מנחם בגין 6, תל אביב יפו, ישראל |
|---|---|
| טלפון: | 054-4950863 |
| דוא"ל: | avnieyal@gmail.com |





