מלאת פוטנציאל ברחוב משגע בצפון הישן!!
פרטי הנכס
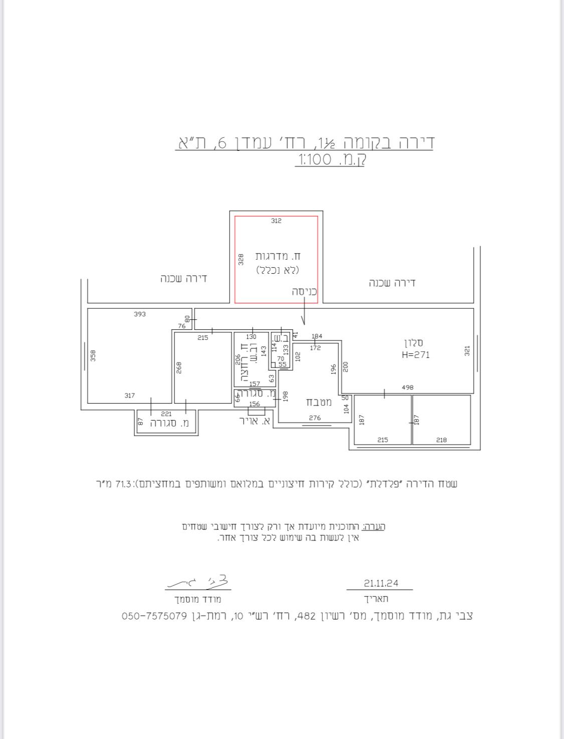
נכס מס' 4386
| כתובת: | עמדן 6, תל אביב-יפו |
|---|---|
| איזור: | הצפון הישן, |
| סוג רחוב: | רחוב שקט |
| סוג בניין: | שמור |
| סוג הנכס: | דירה |
| מחיר: | 3,600,000 ש"ח |
קומה :
2
סה"כ קומות :
4
מטר מרובע :
71
מס' חדרים :
3
מס' חדרי שינה :
2
מס' מקלחות :
1
מרפסת סגורה :
יש
מצב הנכס :
חדש
מרפסת שמש :
אין
סוג חניה :
ברחוב
מעלית :
יש
כיווני אויר :
דרום , מזרח , מערב
במתחם בזל היוקרתי
ברחוב שקט, קטן, נדיר ומבוקש
בבניין מטופח ונעים,
בקומה 1.5
דירת 3 חד' מרווחת
71 מר'
שמורה לשיפוץ,
מלאת פוטנציאל!
3 כיווני אוויר
מוארת ושקטה
מעלית.
ברחוב שקט, קטן, נדיר ומבוקש
בבניין מטופח ונעים,
בקומה 1.5
דירת 3 חד' מרווחת
71 מר'
שמורה לשיפוץ,
מלאת פוטנציאל!
3 כיווני אוויר
מוארת ושקטה
מעלית.
מפה
צור קשר
| כתובת: | מנחם בגין 6, תל אביב יפו, ישראל |
|---|---|
| טלפון: | 054-4950863 |
| דוא"ל: | avnieyal@gmail.com |

















