דירת גג יפהפייה ברחוב הכי נדיר בלב העיר!
פרטי הנכס
נכס מס' 4393
| כתובת: | הגלבוע, תל אביב-יפו |
|---|---|
| איזור: | לב העיר, |
| סוג רחוב: | רחוב שקט |
| סוג בניין: | משופץ |
| סוג הנכס: | דירה , פנטהאוז |
| מחיר: | 9,300,000 ש"ח |
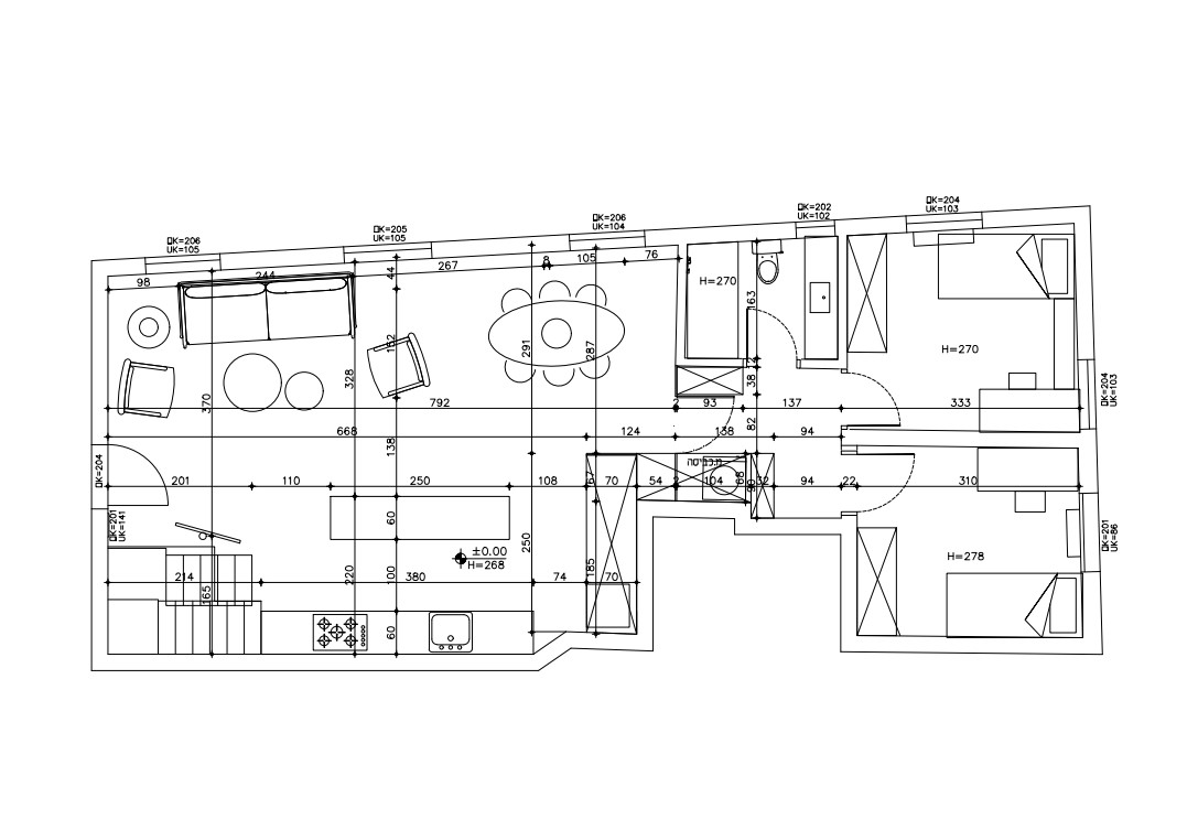
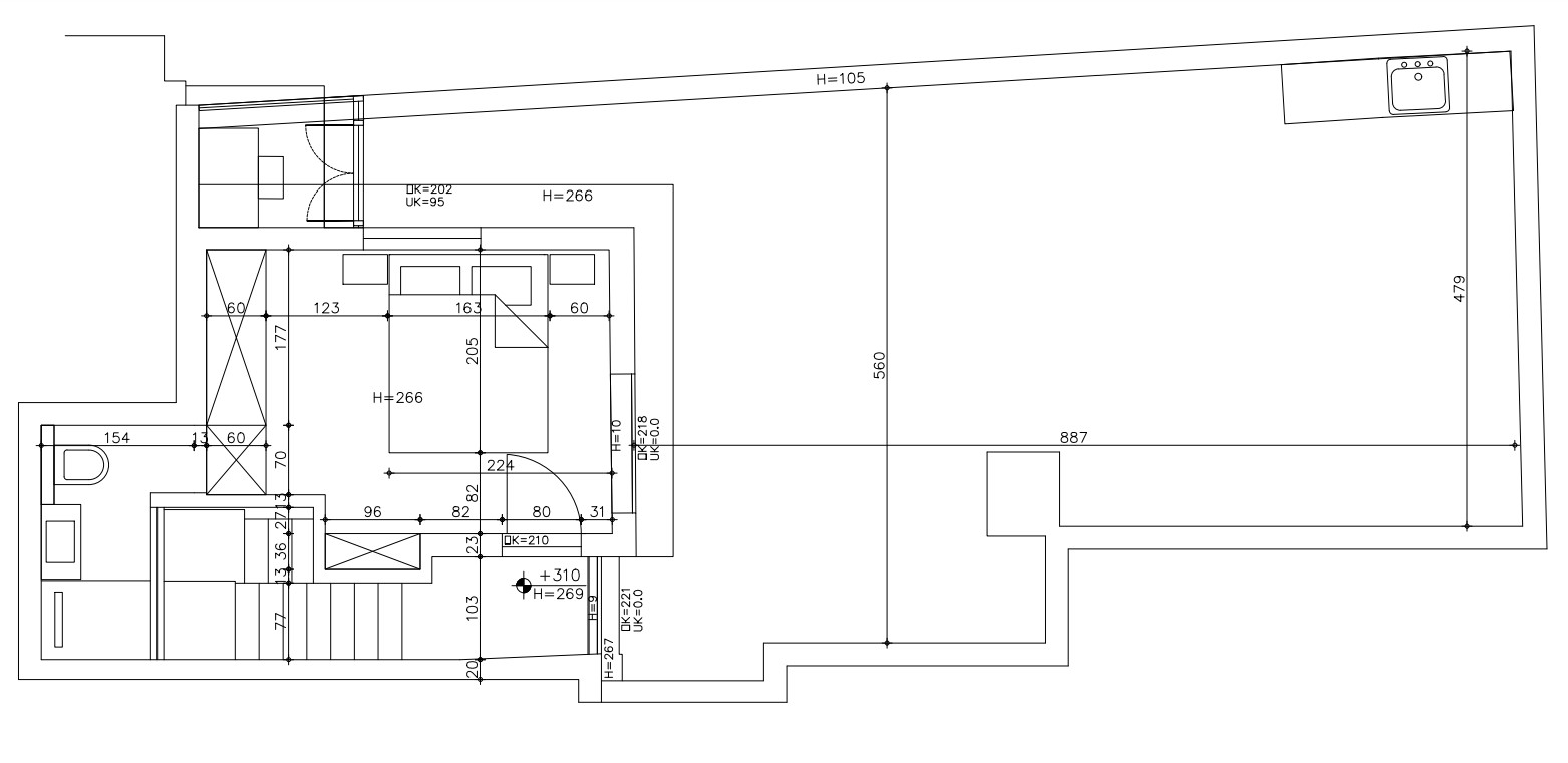
קומה :
4
סה"כ קומות :
4
מטר מרובע :
140
מס' חדרים :
4
מס' חדרי שינה :
4
מס' מקלחות :
2
ממ"ד :
יש
מרפסת סגורה :
יש
מרפסת שמש :
יש
סוג חניה :
בטאבו
מעלית :
יש
כיווני אויר :
דרום , מזרח
בלב העיר, במדרחוב הגלבוע הנדיר, הירוק והמבוקש
בבניין משופץ
דירת גג יפהפייה
4 חד'
110 מר' + 60 מר' גג!
משופצת ומעוצבת
שקטה
מוארת
ממ"ד
מעלית
חניה רגילה בטאבו!
בבניין משופץ
דירת גג יפהפייה
4 חד'
110 מר' + 60 מר' גג!
משופצת ומעוצבת
שקטה
מוארת
ממ"ד
מעלית
חניה רגילה בטאבו!
מפה
צור קשר
| כתובת: | מנחם בגין 6, תל אביב יפו, ישראל |
|---|---|
| טלפון: | 054-4950863 |
| דוא"ל: | avnieyal@gmail.com |















